
一、泥沙監測設備產品介紹
在徑流場與小流域的水土流失監測工作中,傳統人工測量流量和泥沙等數據存在工作量龐大、效率低下的問題,同時人力成本高數據誤差大。水土流失自動監測系統歷經多年技術攻關與大量實地試驗驗證,成功實現對傳統人工監測模式的革新。
本系統由數據采集主控機、含沙量測量傳感器、明渠流量傳感器和降雨量傳感器構成。其中,明渠流量傳感器組件可自動測量徑流流量,并通過控制器精準計算不同時間段的徑流總量與瞬時徑流數據;含沙量測量傳感器依據徑流變化特征,于徑流垂直分布的泥沙測量口,實時采集徑流含沙量數據;降雨量傳感器則負責精準獲取累計雨量數據。各傳感器協同作業,所采集數據對水土流失分析具有關鍵價值。
系統將各傳感器采集的泥沙含量、徑流量和累計雨量數據實時上傳至云平臺,便于用戶隨時隨地調取、分析與管理數據,為水土保持決策提供科學、精準的數據支撐。
泥沙含量傳感器工作流程:地表水體由引水槽進入明渠或巴歇爾槽并經過明渠流量計獲得瞬時徑流量數據,并計算出單位時間內的徑流總量,分水管采集到地表水體送入主水箱,當主水箱待測地表水容量足夠進行檢測時,系統啟動并將待測地表水送入樣品倉進行檢測,傳感器把收集到的數據送給處理器經處理后得到泥沙含量,得到數據后傳感器把內部樣品由排水管排出為下次采樣做好準備。處理器通過485輸出至外部設備。
二、泥沙監測設備產品特點
1、全天候無人值守,自動測量:徑流量、徑流含沙量、徑流總量、累計雨量。
2、太陽能供電和市電雙供電,穩定可靠。全天候無人值守,自動測量數據。
3、具有在計算機軟件上在線實時監測、顯示各測量參數動態過程及曲線、歷史數據下載功能。
4、可現場在數據管理主控機上自由設置采樣頻率及調校時鐘。
5、穩定性好,傳感器自主研發精度高、穩定性強、抗環境干擾能力強。
三、泥沙監測設備技術指標
| 徑流流量測量 | |
| 分辨率 | 0.1m3/h |
| 測量精度 | 量程的1%~5%(取決于堰槽精度) |
| 盲區 | 30~50cm |
| 含沙量測量 | |
| 測量原理 | 稱重方式 |
| 采樣頻率 | 1~99分鐘 |
| 測量范圍 | 0~500kg/m3; |
| 分辨率 | 0.01kg/m3 |
| 測量精度 | <10% |
| 雨量測量 | |
| 測量范圍 | 0mm~4mm/min(允許通過最大雨強8mm/min) |
| 分辨率 | 0.2mm |
| 測量精度 | ≤±3%(室內人工降水以儀器自身排水量為準) |
| 一般指標 | |
| 通訊方式 | RS485 |
| 工作電源 | DC12V |
| 設備功率 | <15W |
| 工作環境 | 溫度:0(不結冰)~50℃;濕度:<95%(無凝露) |
| 工作壽命 | >1年 |
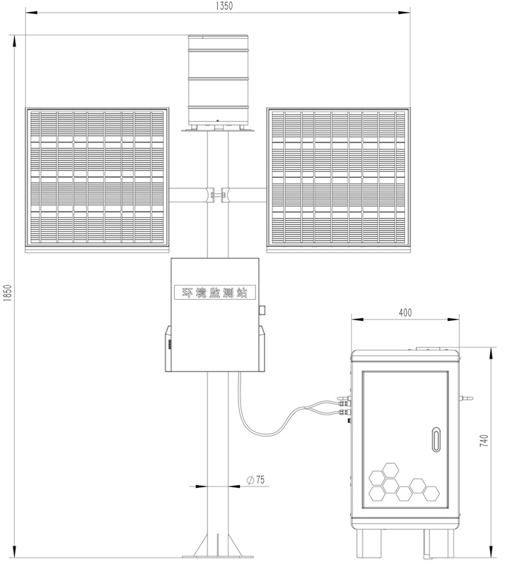
四、泥沙監測設備產品尺寸及工作示意圖
五、泥沙監測設備維護和保養
初次使用前請先擰松運輸固定桿,否則設備將無法正常工作。
初次使用或久置不用重新使用時,請重新進行清水校準和零點校準。
定期檢查儲水箱,如有污泥大量沉積或有雜物,請進行清除,可拆下排水閥并沖洗干凈。
定期檢查排水閥,樣品桶進水閥,樣品桶排水閥,水流流通是否通暢,如水流弱小或不通水,可取消排水閥上的控制線并拆卸下排水閥進行清洗,然后重新安裝回去。
保持設備內部整潔,稱重部分禁止物品堆積,樣品桶下禁止放置物品。
設備所在區域溫度低至零下時,請排空設備內部水分,放置結冰損壞設備。
傳感器使用時間較長出現測量誤差時,可通過配合儀器進行標定校正,當以上方式對傳感器進行維護和保養仍不能進行標定和測量時,說明傳感器已經損壞。
六、泥沙監測設備云平臺介紹
物聯云平臺是基于物聯網通信技術的數據接收、處理、分析平臺,支持MQTT設備通信協議,支持HJ212-2017、HJ212-2005環保協議,支持TCP/IP短鏈接數據轉發,支持HTTP協議數據轉發,支持實時、歷史數據查詢及分析,支持時間序列數據的波形圖顯示,支持數據聚合,支持實時視頻接入,支持設備地圖等。
文章地址:http://www.tjsshcgt.cn/zhsw/5852.html




